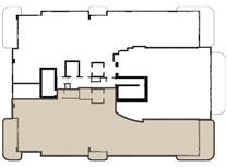
Residence C
Levels 5-14
3 Bedrooms
|
Den
|
4.5 Bathrooms
Interior 4,430 Sf
Terraces 693 Sf
Total 5,123 Sf


ORAL REPRESENTATIONS CANNOT BE RELIED UPON AS CORRECTLY STATING THE REPRESENTATIONS OF THE DEVELOPER. FOR CORRECT REPRESENTATIONS, MAKE REFERENCE TO THIS BROCHURE AND TO THE DOCUMENTS REQUIRED BY SECTION 718.503, FLORIDA STATUTES, TO BE FURNISHED BY A DEVELOPER TO A BUYER OR LESSEE. Stated interior square footage is measured to the exterior face of exterior walls and to the centerline of interior demising walls or to the exterior face of walls adjoining corridors or other common elements without excluding areas that may be occupied by columns or other structural components. This method of measurement varies from, and is larger than, the dimensions that would be determined by using the description and the definition of the Unit set forth in the Declaration (which generally only includes the interior airspace between the perimeter walls and excludes structural components). For reference, the area of the unit, determined in accordance with the unit boundaries set forth in the Declaration is set forth in Exhibit “3” to the Declaration. All dimensions are approximate and may vary with actual construction. Note that the stated interior square footage includes a portion of the Unit which is a non-contiguous storage closet located in the core of the building which is not depicted herein. See Exhibit “2” to the Declaration for the location and dimensions of the non-contiguous storage closet which is part of the Unit and included in the interior square footage described here in. Printed 12 20, 2025.



